6 Hawthorn Place,Laharn,Killorglin,Co. Kerry

Killorglin, Co. Kerry

bathroom3
bedroom4
garages168
garagesA2

Quick Summary

Map

Description

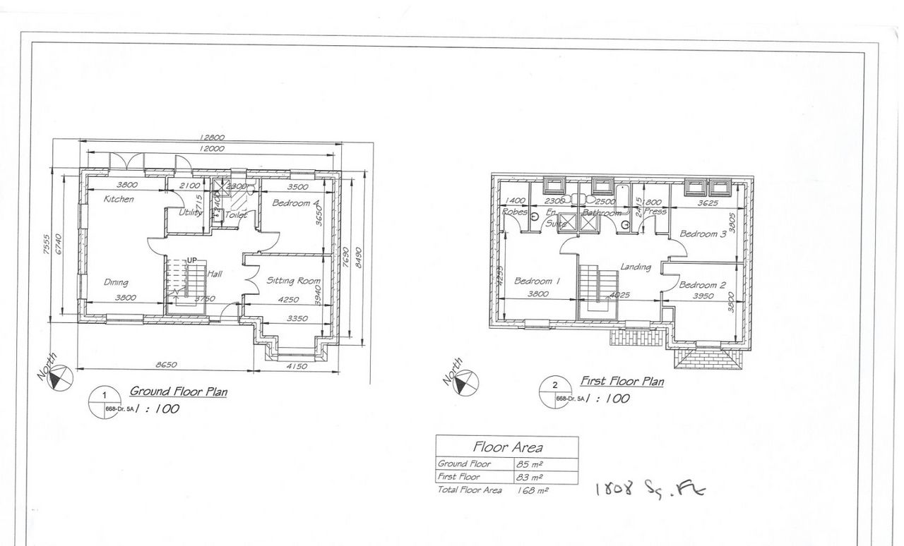
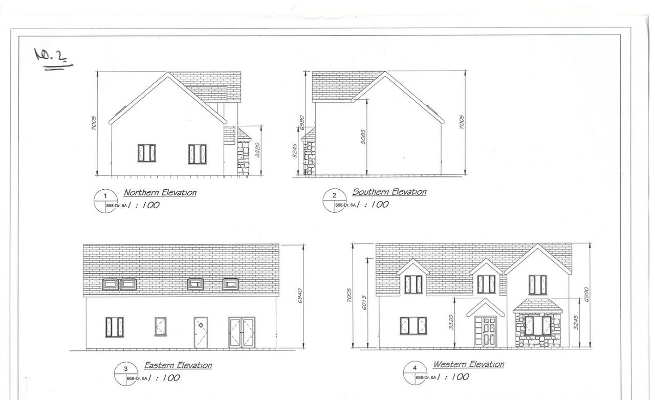
Jim Burns Town & Country Auctioneers are delighted to bring to market No. 2 Hawthorn Place, Laharn, Killorglin, Co. Kerry Newly built detached house. Location Location Location The property is A2 Rated It qualifies for the help to buy scheme. Excellent opportunity to purchase a spacious 4bed Detached Residence c. 1808 sq.ft (168sq.m). Situated in an exclusive development of detached houses walking distance to Killorglin Town and all local amenities. Easy access to Killarney c. 23km, Tralee c. 28km, Cork c. 110km and Kerry Airport c. 23km. Short drive to Rossbeigh Blue Flag Beach, Cromane, Dooks Golf Course and Beach. Acc: Entrance Hall, Kitchen/Dining Room, Utility, Sitting Room, 4Bedrooms (1 Ground Floor & 1 Ensuite), 2 Bathrooms. Services: Mains Water, Mains Sewer, Electricity. Features: A2 Energy Rating 4Bedroom 3 Bath Spacious house 168sq.m/1808sq.ft Tarmac Driveway Gardens levelled and seeded Triple glazed windows and doors Cobble loc foothpaths Generous electric specification Small exclusive development of 9 houses Feature staircase Underfloor heating ground floor Radiators first floor Mechanical heat recovery for ventilation Outside: Corner site, gardens levelled and seeded, tarmac driveway, enclosed site, UPVC Fascia and soffit. Outside lighting. Internal Finishes A2 Rating High quality feature staircase Ceilings and walls smooth plaster finish Concrete flooring downstairs First floor timber joists Generous electrical specification throughout house Air to water heating Mechanical ventilation heat recovery system Aluminum radiators first floor Triple glazed alu clad windows and doors with secure locking system. Wired for broadband Cavity with 200mm insulated walls with air tight. External Finish Liscanner Stone to front with plaster render Cavity walls with insulation Gardens levelled and seeded Brick footpaths Low maintenance UPVC facia and soffit Generous size sites. About Killorglin Killorglin occupies a scenic position overlooking the River Laune and backed by the dramatic slope of McGillycuddy Reeks. It is situated at the beginning of the World-famous Ring of Kerry, part of the Wild Atlantic Way. Killorglin is the gateway to the Reeks District. Killorglin is an attractive place to live, work, and do business. It has good transport links, a vibrant community, social life and great cultural heritage. Killorglin is home to a variety of business across a range of sectors including Aqua Design, Astellas, Fexco, RDI Hub, Temler and Tweak. Schools Schools: National Schools: Scoil Mhuire, Gaelscoil Naomh Seamas, Glounagillagh, Scoil Ralt Na Mara Cromane Secondary Schools: Killorglin Community College, I.S.K Intermediate School Killorglin. DISCLAIMER: Jim Burns & Co. Ltd for themselves and for the vendors or lessors of the property whose agents they are, give notice that: (i) The particulars are set out as a general outline for the guidance of intending purchasers or lessees, and do not constitute part of, an offer or contract. (ii) All descriptions, dimensions, references to condition and necessary permissions for use and occupation, and other details are given in good faith and are believed to be correct, but any intending purchasers or tenants should not rely on them as statements or representations of fact but must satisfy themselves by inspection or otherwise as to the correctness of each of them. (iii) No person in the employment of Jim Burns & Co. Ltd has any authority to make or give representation or warranty whatever in relation to this property.

Request Inquiry
Jim Burns Auctioneers